fbpx

Museo Ebraico di Ferrara

Concorso Internazionale

Descrizione

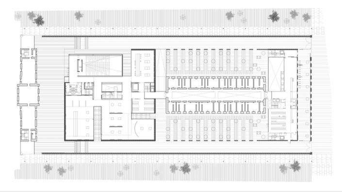
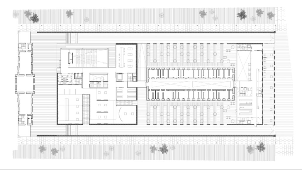
Il progetto del museo prevede la nuova edificazione di due volumi che accolgono al loro interno un edificio esistente di forte carattere simbolico.
I volumi vengono modellati per realizzare un percorso chiaro e corretto.


Il programma funzionale del nuovo museo sarà alloggiato quasi interamente nel blocco principale di nuova edificazione e nel blocco pre-esistente, che verrà restaurato. In questo blocco le celle saranno luogo di collegamento tra i due blocchi di nuova edificazione.

Progettisti

Consorzio Concise

Otxotorena Arquitectos S.L.

Studio Sidoti

© 2016 Studio Sidoti di Arch. Alberto Sidoti e C. S.a.s. S.t.p. P.I. 05036400280